Strabag Zentrale
Als dem Fußverkehr vorbehaltener Bereich entlang der neuen Donau hat die windige Donauplatte über der stark befahrenen A22 einiges Potenzial. Die Strabag erschließt Teile davon, indem sie ihre Unternehmenszentrale im Grunde erst im 5. Stock beginnen lässt und den bis auf drei Erschließungskerne und wenige Stützen frei gelassenen Raum darunter mit Freizeitangeboten und Kultur bespielt: In sieben windschiefen, kristallin wirkenden Stahl-Glas-Konstruktionen locken Gastronomie, Shops, eine Veranstaltungshalle und vor allem das Strabag-Kunstforum, das sich der Förderung von Jungkünstlern verschrieben hat.
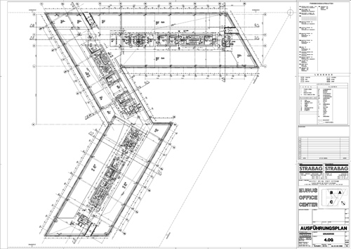
Die in streng modularem Raster aufgeständerten Bürogeschosse entwickeln sich auf einem gezackten, der Spur nach S-förmigen Grundriss, dessen 30°-Winkel sich aus den Fluchten der Neuen Donau und der umliegenden Straßen ergeben.
Deutlich niedriger als die benachbarten Hochhaustürme entfaltet der 13 m hoch über dem Boden wie schwebend wirkende „Blitz“ mit seinen acht Voll- und zwei Dachgeschossen nahe dem beliebten „Copa Beach“ einige Eleganz.
Herausforderungen an die Tragwerksplanung
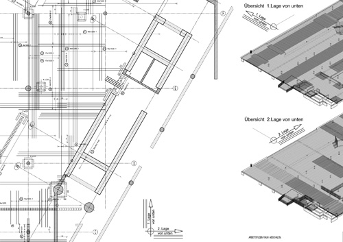
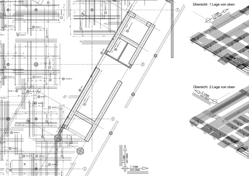
Im Gegensatz zu einer erwartbaren Konstruktion in Form eines massiven Abfanggeschosses, ging aus dem eigens veranstalteten Tragwerkswettbewerb unser neuartiges und ausgeklügeltes Lastableitungssystem als Sieger hervor. Es hat die Vorteile, mit minimierter Stützenanzahl auszukommen und im Rauminnern pro Geschoss lediglich eine Schrägstütze je Achse in Erscheinung treten zu lassen. Im Regelschnitt ergibt sich ein Kraftdreieck, bestehend aus Stahlbetondecke über dem 11. OG, schräger Stahlverbundstütze und Vollstahlhänger (Zugseil) in der Fassadenebene. Die Last der acht Geschosse wird über die in V-Form angelegten Druckstützen direkt in die Treppenhauskerne eingeleitet; es bleibt nur ein relativ geringer Lastanteil übrig, der je nach Größe der Einflussfläche im jeweiligen Geschoss, über die Hänger nach oben abgeführt wird.
Die Lasten aus den bis zu 25 m weit auskragenden spitzen Ecken werden von schrägen Hängern in den Fassadenebenen aufgenommen.
Die Horizontalaussteifung erfolgt in Verbindung mit der Scheibenwirkung der Stahlbetondecken ausschließlich über die im Grundriss gegeneinander verdrehten Treppenhauskerne. Durch die ausgeklügelte unterschiedliche Ausrichtung und Wechselwirkung untereinander erübrigen sich weitere Aussteifungselemente, dennoch ergeben sich wesentliche Vorteile in Bezug auf die Gesamtstabilität, so auch auf die Erdbebensicherheit und letztlich auf die Wirtschaftlichkeit.
Das Lastableitungsmodell wurde als Gebrauchsmuster registriert.



























