AHS Heustadelgasse
Die Allgemeinbildende höhere Schule liegt flach gelagert in der von niedriger Vorstadtbebauung geprägten Peripherie Wiens nahe der Seestadt Aspern. Mit ihren Dimensionen für 30 Klassen, der klösterlichen Selbstbezogenheit eines Kreuzgangtyps aber auch einer gewissen Durchlässigkeit mit offenen Zugängen und Verglasungen bildet sie in der diffusen Vorstadt einen urbanen Bezugspunkt und eine starke Setzung.
Der Haupteingang liegt am Ende des Hofs, wo sich alle inneren Wege in der zweigeschossigen Aula kreuzen und von wo aus der Blick durch die teilweise eingegrabene, rundum verglaste Turnhalle bis hinaus auf Wiesen und Felder schweifen kann.
Die innere Struktur könnte klarer kaum sein: Alle Räume sind an langen Fluren streng aufgereiht. Die breiten Erschließungszonen orientieren sich zum Hof hin und beziehen sich auf das innere Leben der Schule, während die Klassen „in die weite Welt hinaus schauen“. Im Obergeschoss ergibt sich ein Ring, der sich mit der Bibliothek und einer vorgelagerten Terrasse nach Süden hin öffnet.
Weit ausladende Pergolen im Hof dienen zur Beschattung der Glasfassaden und als Rankgerüste. Der Anspruch der Bildungsstätte findet sich in feinen Linien wie auch in scharfen Kanten wieder, die sich aus diszipliniert gesetzten Verglasungen, sparsam eingesetzten Stützen und erstaunlich dünnen Sichtbetonscheiben ergeben. Holzbekleidete Untersichten und lattenbelegte Wege bringen den nötigen Anflug von Behaglichkeit.
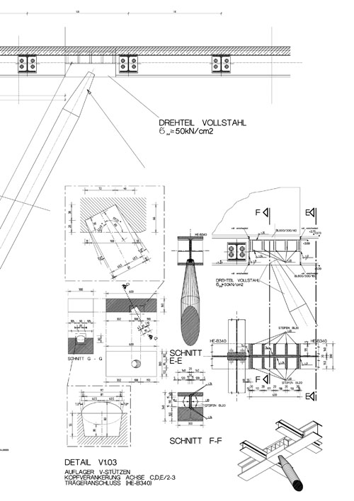
Herausforderung an die Tragwerksplanung
Bei solch starker Klarheit in Struktur und Gestaltung dürfen Konstruktion und Tragwerk nicht in Erscheinung treten, auch wenn dies eine hohe Bearbeitungsintensität bedeutet. Um maximale Flexibilität der Grundrisse zu ermöglichen, galt es, einen extrem transparenten Skelettbau mit möglichst wenigen aussteifenden Stahlbetonwänden herzustellen.
So ist z.B. der „schwebende“ Klassenriegel über dem Eingangsbereich auf dünnen V-förmigen und in den Endpunkten spitz zulaufenden Stützenpaaren aufgeständert. Die Anschlusspunkte sind aus querdehnungsbehindertem Stahl konstruiert und können sehr hohe Spannungen aufnehmen. Über den Stützen kragen wie bei einer Waage beidseitig Stahlbetonscheiben aus und bilden zusammen mit den Beton-Stahl-Verbund-Böden und -Decken in der Funktion von Druckstab und Zugband ein statisches System, das in den Erschließungskernen unverschieblich verspannt ist und auch asymmetrische Lastfälle abführen kann.
Die Hauptträger der Dreifach-Turnhalle bestehen aus außenliegenden geschweißten Blechträgern, die in Zweierpaaren schmale Boxen für die Verwahrung der Trennvorhänge bilden. Die Untergurte des aus Walzprofilen und Flachstählen gefertigten Fachwerks, dienen als Auflager für die sichtbare Trapezblechuntersicht. Das gelochte Blech wurde mit einer Akustikeinlage versehen und diente dann als verlorene Schalung für eine Stahlbetonrippendecke.













